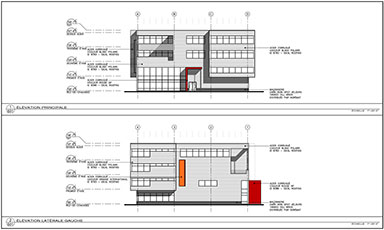
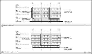
Les tours de la Cité – Complexe de bureaux
Ce futur complexe de trois tours à bureaux de 35 000 pi.ca. chacune, inscrit sur quatre étages, sera érigée dans une zone commerciale en pleine expansion favorisant le développement commercial, soit face à l’autoroute des Laurentides à Mirabel. Les aménagements sont selon les normes BOMA et basés sur une trame 5'-0" x 5'-0" (1 525 mm x 1 525 mm).
Localisation : Boulevard de l'Avenir, Mirabel (en façade de l'autoroute 15)
Maître d’œuvre : Le groupe CIBS
Concepteur principal :
Luc M. Allard Architecte
Programme : 3 tours de 4 étages de complexe à bureaux
Superficie : 3 tours de 35 000 pi.ca.
(8 750 pi.ca. par étage)
Année : 2013 (conception)







