Future tour à bureaux – Tri-Tex
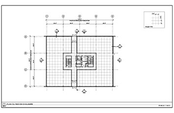
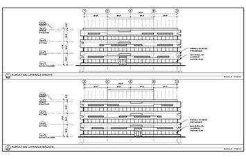
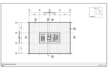
Conception d’une tour à bureaux de près de 34 000 pi.ca. sur trois étages. Le client érigera ce bâtiment sur le boulevard Industriel à St-Eustache, près de son siège social. Les aménagements sont selon les normes BOMA et basés sur une trame 5'-0" x 5'-0" (1 525 mm x 1 525 mm).
Localisation : Boulevard Industriel,
Saint-Eustache
Maître d’œuvre : Tri-Tex Co inc.
Concepteur principal :
Luc M. Allard Architecte
Programme : Tour à bureaux de 3 étages
Superficie : 33 900 pi.ca.
(11 300 pi.ca. par étage)
Année : Septembre 2013 (Conception)







